Uppdaterad: 13 augusti 2025
Planritning
Hem / Bostad / Köpa bostad /
En planritning, även kallad planskiss, är en skalenlig tvådimensionell ritning som visar en byggnads eller bostads planlösning uppifrån. Den används för att ge en överblick över hur olika rum och ytor är fördelade, samt hur dörrar, fönster och väggar är placerade. Planritningar är oftast ritade i skala 1:100.
Vad planritningen visar och inkluderar
En planritning visar vilka funktioner rummen har, till exempel om det är ett sovrum, kök, badrum, dusch eller garage. Ibland visar den även rummens storlek i kvadratmeter. Ritningen visar dessutom placeringen av fönster och dörrar, hur våningsplanet är utformat och var fasta installationer som vitvaror och VVS finns.
En typisk planritning inkluderar:
- Fast inredning: T.ex. köksskåp, toalett och dusch.
- Rumsindelning: Sovrum, vardagsrum, kök, badrum etc.
- Yttermått och väggar: Tjocklek och placering av väggar.
- Dörrar och fönster: Position och öppningsriktning.
- Måttangivelser: Anges ibland men måste inte finnas med
Symbolerna i en planritning
- DB – Diskbänk
- DM – Diskmaskin
- F – Frys
- FRD, Frd, FÖRR – Förråd
- G/L – Garderob/Linneskåp
- HS – Högskåp
- HS/U – Högskåp med ugn
- IT – El & IT
- K, KS, K/S – Kylskåp
- K/F – Kyl/Frys
- KK, KLK – Klädkammare
- KPH – Kapphylla
- KPR – Kapprum
- KTT – Kombinerad tvättmaskin och torktumlare
- L – Linneskåp
- S – Skåp
- SK – Skafferi
- SKK – Skafferi/Kylskåp
- ST – Städskåp
- TM – Tvättmaskin
- TP – Tvättpelare
- TS – Tvättställ
- TT – Torktumlare
- VP – Värmepump
- VVB – Varmvattenberedare
- WC – Toalett
- WC/D – Toalett/Dusch

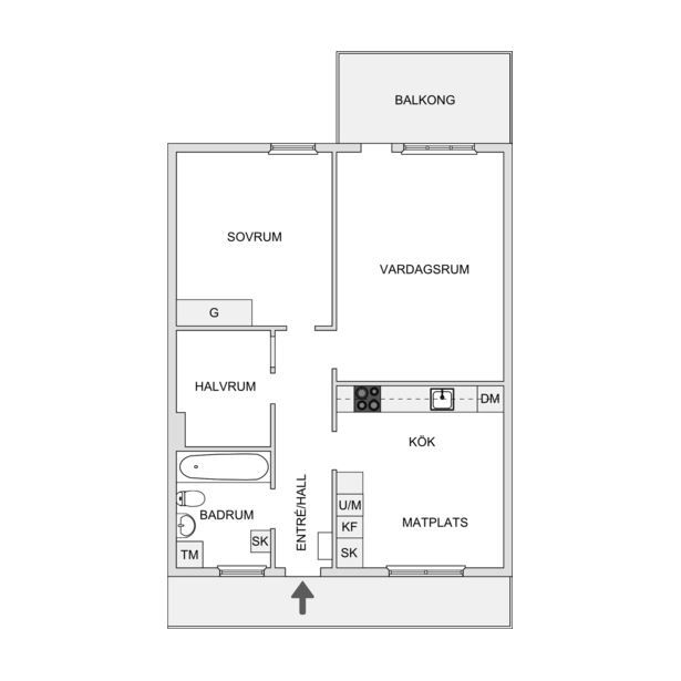
Planritningar för hus & lägenhet
Planritningar upprättas på samma sätt för hus och lägenheter. Här är två exempel på planritningar, en för lägenhet (bostadsrätt) och en för ett hus.


Hur hittar man planritningar?
Planritningar för en specifik bostad finns ibland tillgängliga hos din kommun. I vissa fall kan du logga in med BankID på kommunens webbplats och ladda ner de ritningar du behöver. Om detta inte är möjligt kan du kontakta kommunen direkt och förklara ditt ärende, så får du hjälp att hitta rätt.
På Lantmäteriets webbplats finns tjänsten Min Fastighet, där du kan logga in för att få detaljerad information om din fastighet, inklusive eventuella planritningar.
Om du inte får tag i planritningen via kommunen eller Lantmäteriet kan du undersöka om bostaden sålts under de senaste åren (exempelvis via Booli slutpriser) och kontakta mäklarfirman som sålde bostaden. De brukar spara planritningarna efter försäljningar och kan vanligtvis maila de till dig.
”Köpa på planritning”
När man köper nyproduktion har man vanligtvis ingen möjlighet att rent fysiskt besöka bostaden. Då får man nöja sig med att titta på planritningen samt annat framarbetat försäljningsmaterial innan man bestämmer sig för att köpa.
När man säljer vidare en nyproducerad bostad innan man fått tillträde till den kallas det för att ”sälja på ritning”. Uttrycket kommer från att köparen även i detta fallet får förlita sig på bland annat planritningen vid köpbeslutet.
När används planskissen?
- Bygglov: vid bygglovsansökan är en planritning obligatorisk
- Försäljningar av bostäder: planritningen är normalt en del av marknadsföringsmaterialet. Det är dock ingen obligatorisk bilaga.
Vanliga frågor och svar
Nej, planritning är inget formkrav.
Nej, mått måste inte finnas med i planritningar?
Det betyder klädkammare.
Det betyder förråd.
Skribent - Joakim Ryttersson
Joakim har arbetat som fastighetsmäklare i många år och vill nu via Ekonomifokus.se förmedla kunskap och hjälpa besökarna att fatta bättre beslut vid köp och försäljning av bostad samt vid bolånerelaterade frågor. Utöver kunskaper inom bostadssegmentet har Joakim även ett stort intresse för ekonomi och finans. Tillsammans med Andreas Hogmalm startade Joakim företaget Hojjo Sverige AB som grundade bostads- och ekonomisajten Ekonomifokus.se. Företaget äger och driver även andra hemsidor, Boupplysningen.se, Aktiekunskap.nu och Aktiewiki.se exempelvis.